Projekt Om mig Kontakt
05

Bygglov

Riv- och bygglov för en altan. Från betonggrund till träkonstruktion , ett privatprojekt i Askim.

Datum Juni 2025 –
Beställare Privat / Villa i Askim
Status Pågående , Bygglov godkänt, rivning pågår

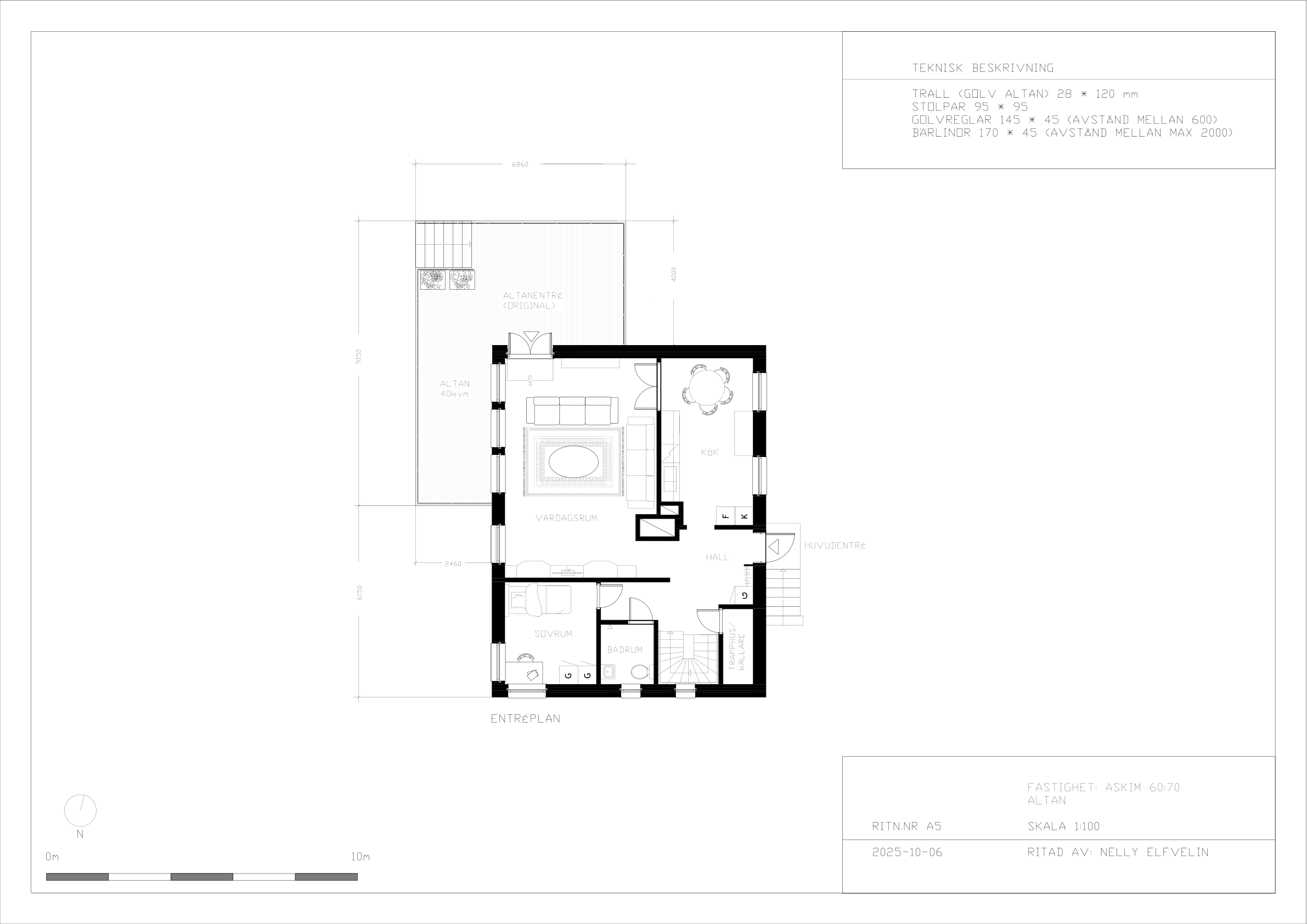
Uppdrag

Rita om och utöka altanen samt skapa en rymligare och mer tillgänglig trappa. Altanen med träpanel löper runt hörnet för att ge möjlighet till fler soltimmar. Glasat räcke mot trädgården och träpanel mot gatan för att minska insyn.

Altan , Ursprungsskick Visualisering , Förslag

Planritning

Planritning

Fasader

Fasad mot norr Fasad mot söder
Fasad mot väster